Table of Contents
Project Overview: Precision Acoustics for a Sophisticated Office Build-Out
- Project: Biohaven Pharmaceuticals ā Modern Office Build-Out
- Location: One Flagler, 134 Lakeview Ave Floor 25, West Palm Beach, FL
- Client: Biohaven Pharmaceuticals
- Facility Type: Executive-level corporate office
- Contractor: RM Construction Management
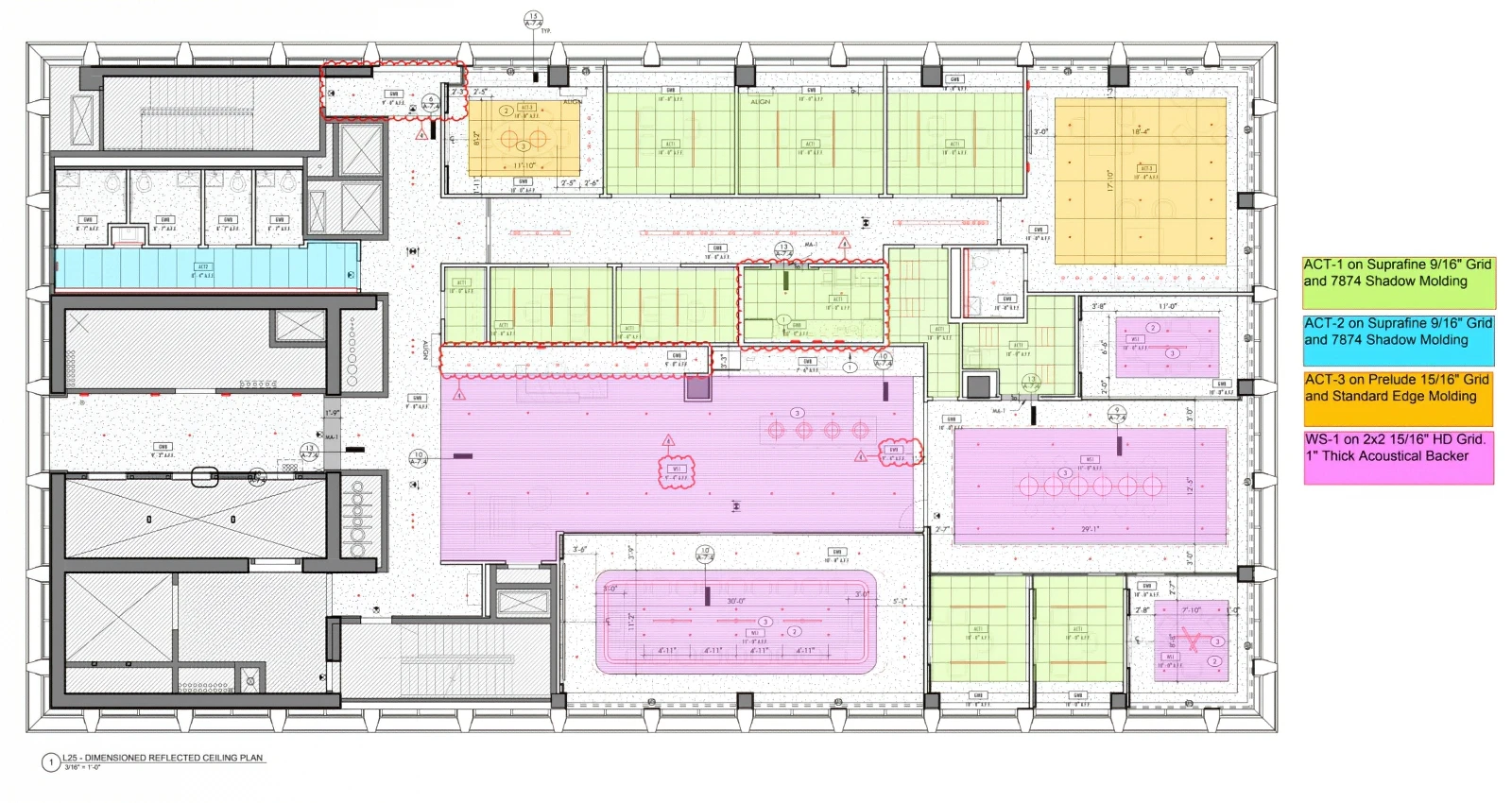
- Scope: Install 3,000 sq. ft. of high NRC ceiling tile on 9/16ā³ Suprafine grid
Commercial Acoustics partnered with RM Construction Management to support the acoustic design phase of Biohaven Pharmaceuticalsā new office at One Flagler, a landmark commercial tower in West Palm Beach. The project transformed over 7,000 square feet of space into a modern office environment featuring executive offices, conference rooms, open-plan workspaces, and collaborative zones.
Our contribution focused on installing a high NRC ceiling tile system designed to reduce echo, enhance speech clarity, and align with the sophisticated visual standards of the interior build. In a Class A+ tower like One Flagler, the integration of acoustics had to be seamlessāquietly improving function without drawing visual attention. By coordinating with ceiling-mounted lighting, HVAC, and sprinkler systems, our team delivered acoustic performance without altering the ceiling architecture.


Acoustic Goals: Speech Clarity & Comfort in a Modern Office
- Challenge: Maintain privacy and reduce echo in open-plan work areas
- Solution: High NRC ceiling tile to absorb speech-frequency sound energy
- Constraint: Avoid conflicts with existing lighting, HVAC, and life safety
The Biohaven team needed a solution that balanced architectural design with acoustic control. In modern office environments with hard surfaces, glass partitions, and open layouts, reverberation and sound bleed can easily undermine focus and privacy. This was especially true at One Flagler, where Biohavenās executive team operates in close proximity to collaborative departments and meeting spaces.
We recommended ceiling tiles with a noise reduction coefficient (NRC) of 0.75, capable of absorbing 75% of sound energy at key speech frequencies. The system helped localize sound in meeting rooms, minimized carryover between offices, and created a quieter, more focused environment for teams to collaborate and communicate.

Measured Benefits: Quieter, More Comfortable Workspaces
- Reverberation Control: RT60 modeled reduction of 35ā40 percent
- Speech Privacy: Localized sound zones with reduced carryover
- User Feedback: Improved clarity in calls and in-person conversations
No additional sound masking or wall-mounted panels were required. This NRC ceiling tile system achieved its goals without impacting the visual design of the space. Employees reported immediate improvements in acoustic clarity, particularly in conference rooms and shared office areas.
For Biohaven, the ceiling system not only solved a functional challengeāit reinforced the quality, precision, and comfort expected in a modern corporate environment.

Why High NRC Ceiling Tile Works for High-End Office Interiors
- Acoustic Value: Reduces echo, boosts clarity, and improves focus
- Design Compatibility: Clean integration with premium ceiling layouts
- Fast Installation: Minimal disruption in occupied or near-complete spaces
In high-end office interiors, acoustics are often overlooked until they become a problem. By specifying premium NRC ceiling tile during design development, architects and contractors can avoid costly retrofits or post-occupancy complaints.
The system installed at One Flagler proves that performance and aesthetics are not mutually exclusive. The tiles provided real acoustic value without compromising on finish, and they were installed efficiently with no ceiling rework or layout changes.
Whether in executive suites, conference areas, or collaborative departments, high NRC tile helps maintain comfort, confidentiality, and design continuity across modern workspaces.

Installation Approach: Seamless Execution Without Disruption
- Grid System: 9/16ā³ Suprafine for clean fit with ceiling layout
- Work Hours: Phased install during business hours, no disruption
- Coordination: Worked around MEP to avoid clashes with ducts & lights
Installation at Biohaven was phased to maintain operations throughout the project. Each ceiling zone was sectioned off and completed during normal business hours, with no disruption to sensitive equipment or workflows. The 4’x4′ tiles were laid into a 9/16ā³ Suprafine grid system, offering tight reveals and a clean architectural finish.
Our team coordinated closely with MEP drawings to avoid conflicts with ductwork, light fixtures, and sprinkler systems. No ceiling rework or drywall alterations were required. In the end, the client experienced zero punch list items and full satisfaction with the acoustic improvement. This approach is typical of our healthcare projectsāfast, coordinated, and designed to integrate smoothly into existing building systems.

Summary: Acoustic Design for High-Performance Medical Offices
The Biohaven Pharmaceuticals office at One Flagler showcases how high NRC ceiling tile can quietly transform the experience of a modern office space. This wasnāt just an installationāit was an acoustic strategy, delivered without disruption, that elevated both form and function.
At a time when corporate interiors are expected to deliver more than visual appeal, architects and general contractors must consider sound as a critical element of performance. In executive suites, collaborative areas, and open workspaces alike, reverberation and lack of clarity can impact everything from productivity to client impression.
Our work on this project illustrates how acoustics can be designed with the same level of care as lighting, finish, and layout. By partnering early in the build-out process and coordinating closely with ceiling-mounted systems, we helped Biohaven achieve a quieter, more private, and more refined workplaceāwithout compromise.
For layout assistance, submittal packages, or installation coordination on your next office project, contact Commercial Acoustics. We help architects and contractors specify, schedule, and deliver acoustic ceiling solutions that performāwithout disrupting the build.

FAQs: High NRC Ceiling Tiles in Modern Office Acoustics
What NRC rating is best for modern office ceilings?
NRC 0.75 or higher is ideal for managing echo, especially in open areas, meeting rooms, and private offices where speech clarity and privacy are critical.
Are high NRC ceiling tiles visually compatible with upscale interiors?
Yes. Many high NRC tiles come in clean, smooth finishes and large-format options that align with modern grid systems and sophisticated ceiling aesthetics.
How disruptive is ceiling tile installation during an office build?
Minimal. When properly phased, installation can take place during business hours with no interference to construction schedules or completed finishes.
Do high NRC ceiling tiles eliminate the need for wall treatments?
Often, yes. In spaces with controlled finishes and good layout, ceiling tile alone can deliver sufficient absorptionāespecially in open-plan offices.
Can NRC ceiling tiles help with productivity in corporate settings?
Absolutely. Reduced echo and better sound control improve concentration, minimize vocal strain, and support more effective communication in the workplace.

